Sale Agreed
Points Of Interest

Share with a friend

Please check you have entered all details correctly:

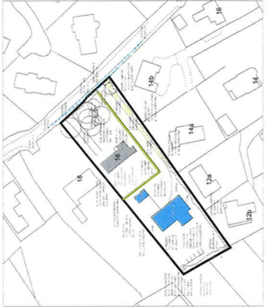
Residential Building Site Adjacent To, 16 Lenamore Drive, Jordanstown, Newtownabbey, BT37 0PQ

£175,000
Building Plot
4.9 out of 5 based on over 800 reviews
Client Reviews
  • Residential building site
  • Planning reference LA03/2025/0229/O
  • Planning application date 4th April 2025
  • Planning approval date 25th July 2025
  • A copy of the planning and condition are attached
  • The approximate dimensions are 50m x 31m, Area: 1,550 m² (not including the lane)
  • The overall size of the site is approximately 0.383 acres
  • Property will also come on the market at the start of 2026

Additional Information

A residential building site in a highly regarded residential area of Jordanstown. The area is recognised as an area of Townscape character.

It's good to talk

If you are interested in this property, you can fill in your details using the enquiry form, and a member of our team will get back to you as soon as they can.

Please check you have entered all details correctly: